HUTI PIC 3DVIS Ext B BR BG 01 Nrw 1 HUTI PIC 3DVIS Ext B BR BG 01 Nrw 1

Hüti

Tutvustus

Otsid praktilist ja samas omanäolist moodulmaja?

– Sobib väikekoduks või suvekoduks
– Ideaalne külalistemajaks või majutusäriks
– Suurepärane noortele või paaridele esimeseks koduks
– Võimalik täiendada lisamoodulitega (talveaed, saun, lisamagamistoad)

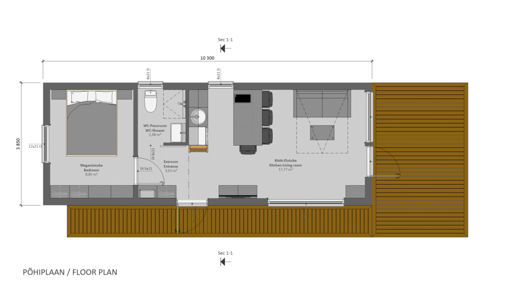
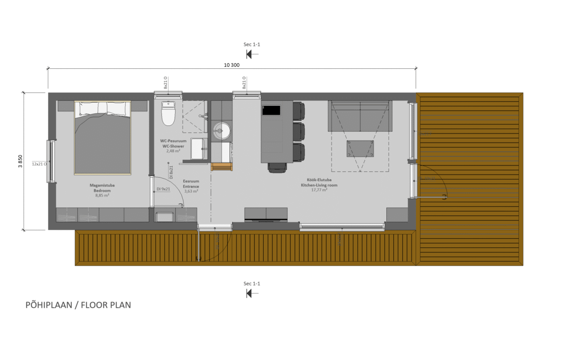
HÜTI on kompaktne, ent samas avar viilkatusega moodulmaja, mis ühendab läbimõeldud planeeringu ja praktilised lahendused. Elamu keskmes on valgusküllane köök-elutuba, mis loob hubase keskkonna igapäevaeluks ja külaliste vastuvõtuks. Kaheinimese magamistuba on varustatud eraldi garderoobiosaga, lisades mugavust ja funktsionaalsust. Esik koos mahuka garderoobiga muudab igapäevase kasutuse praktiliseks ja korrastatuks.
Kompaktne WC-pesuruum vastab kõigile kaasaegse elu mugavusnõuetele, samas kui avar magamislavats (15,8 m²) annab lisaruumi – seda saab kasutada nii magamisena kui ka panipaigana.

HÜTI eripäraks on selle paindlikkus – soovi korral saab põhimooduliga liita talveaia, saunamooduli või lisamagamistubade mooduli. Nii kasvab HÜTI koos Sinu vajadustega ja pakub pikaajaliselt väärtuslikku lahendust.

HÜTI moodulmaja on loodud kestma – seda on lihtne teisaldada ning see hoiab oma väärtust ka siis, kui sinu vajadused ajas muutuvad.

Tehnilised näitajad:

  • Kasulik pind + magamislavats 32,70 m² + 15,80 m²
  • Ehitusalune pind 40,00 m²
  • Laius 3 850 mm
  • Pikkus 10 300 mm
  • Kõrgus 4 100 mm
  • Kaal 9 500 kg

Meie kompaktmajade tooted on disainitud ja toodetud arvestades põhjamaade karmide kliimaolude eripära ning väike- ja suvemajadele kehtestatud ehitusnormatiive ja kõrgeid standardeid. Kõik tehnilised lahendused ja konstruktiivsed detailid on hoolikalt läbi mõeldud, et tagada hoone aastakümnete pikkune vastupidavus, pakkudes samal ajal turvalist ja energiatõhusat elukeskkonda.

Standardtoodetes kasutame kvaliteetset mineraalvilla (λ = 0,035 W/m·K), mis tagab moodulmajadele suurepärased soojustehnilised omadused:

  • Aluspõrand (GF): 220 mm isolatsiooni, U = 0,171 W/(m²K)
  • Välisseinad (EW): 150 mm isolatsiooni, U = 0,243 W/(m²K)
  • Katus (RO): 250 mm isolatsiooni, U = 0,165 W/(m²K)

Vastavalt kliendi erisoovidele on võimalik teostada ka veel tõhusama energiatõhususega lahendusi, kasutades parema soojajuhtivusteguriga isolatsioonitooteid.

Tänu läbimõeldud konstruktsioonidele saavutavad meie väikemajad tasakaalu energiatõhususe, vastupidavuse ja elamismugavuse vahel.

Meie hind alates sisaldab seest ja väljast viimistletud moodulmaja meie tehase laoplatsil.

Hind alates 58 400 EUR

Ei leidnud sobivat lahendust?