HUTI PIC 3DVIS Ext BGS FL GG 01 Nrw HUTI PIC 3DVIS Ext BGS FL GG 01 Nrw

Hüti+ Sauna

Tutvustus

Otsid praktilist ja samas omanäolist moodulmaja?

– Ideaalne koduks või suvekoduks
– Mõnus lahendus seltskondlikuks olemiseks igal aastaajal
– Suurepärane noortele peredele või paaridele
– Kombineerib praktilisuse ja luksuslikud lisavõimalused

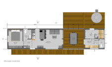
HÜTI koos talveaia- ja saunamooduliga on kolmest moodulist koosnev viilkatusega kompaktmaja, mis ühendab põhjamaiseks eluks vajaliku praktilisuse ja hubasuse. Hoone südameks on valgusküllane köök-elutuba, mis loob koduse keskpunkti igapäevaseks eluks ja sõprade vastuvõtuks.

Põhiosas paikneb ka kaheinimese magamistuba garderoobiosaga, praktiline esik mahuka garderoobiga ning kompaktne WC-pesuruum. Lisaväärtust annab suurepinnaline magamislavats, mida saab kasutada nii magamiskohana kui ka panipaigana.

Elutoast pääseb otse avarasse ja valgusküllasesse talveaeda, mis loob mõnusa koha seltskondlikuks olemiseks igal aastaajal ning pakub võimalust kasvatada ka ürte ja toataimi. Talveaed seob harmooniliselt põhiosa ja saunamooduli, kus asuvad avar eesruum riietumiseks, hubane leiliruum, kahe pesukohaga pesuruum otsepääsuga õue ning eraldi väike WC.

HÜTI koos lisamoodulitega on paindlik lahendus, mis kasvab kaasa teie vajadustega – luues mitte ainult kompaktse eluaseme, vaid ka elustiili.

HÜTI moodulmaja on loodud kestma – seda on lihtne teisaldada ning see hoiab oma väärtust ka siis, kui sinu vajadused ajas muutuvad.

Tehnilised näitajad:

  • Kasulik pind + magamislavats 57,70 m² + 15,80 m²
  • Ehitusalune pind 69,30 m²
  • Laius 3 850 mm
  • Pikkus 18 000 mm
  • Kõrgus 4 100 mm
  • Kaal 18 500 kg

Meie kompaktmajade tooted on disainitud ja toodetud arvestades põhjamaade karmide kliimaolude eripära ning väike- ja suvemajadele kehtestatud ehitusnormatiive ja kõrgeid standardeid. Kõik tehnilised lahendused ja konstruktiivsed detailid on hoolikalt läbi mõeldud, et tagada hoone aastakümnete pikkune vastupidavus, pakkudes samal ajal turvalist ja energiatõhusat elukeskkonda.

Standardtoodetes kasutame kvaliteetset mineraalvilla (λ = 0,035 W/m·K), mis tagab moodulmajadele suurepärased soojustehnilised omadused:

  • Aluspõrand (GF): 220 mm isolatsiooni, U = 0,171 W/(m²K)
  • Välisseinad (EW): 150 mm isolatsiooni, U = 0,243 W/(m²K)
  • Katus (RO): 250 mm isolatsiooni, U = 0,165 W/(m²K)

Vastavalt kliendi erisoovidele on võimalik teostada ka veel tõhusama energiatõhususega lahendusi, kasutades parema soojajuhtivusteguriga isolatsioonitooteid.

Tänu läbimõeldud konstruktsioonidele saavutavad meie väikemajad tasakaalu energiatõhususe, vastupidavuse ja elamismugavuse vahel.

Meie hind alates sisaldab seest ja väljast viimistletud moodulmaja meie tehase laoplatsil.

Hind alates 95 400 EUR

Ei leidnud sobivat lahendust?